Via Paul Makelaardij

Verkocht: Molenstraat 56, 5014 NE Tilburg

Beschrijving

MOLENSTRAAT 56 TILBURG

Ruimte, licht en comfort in hartje stad

Nabij het bruisende centrum van Tilburg staat deze verrassend ruime eengezinswoning met garage. De woning combineert karakter met hedendaagse afwerking en ligt in de gezellige wijk Loven-Besterd. De buurt heeft een levendige sfeer met relatief veel jonge inwoners. Alle voorzieningen – winkels, scholen en het centraal station – liggen op loopafstand. Eveneens op loopafstand bevindt zich een supermarkt en natuurlijk de Spoorzone – hét creatieve hart van Tilburg. Hier struin je over een overdekte markt in de Wagenmakerij, geniet je van een diner bij de Houtloods of laat je inspireren in de imposante LocHal. ’s Avonds kun je swingen bij Theater de Boemel of je laten verrassen door een expositie of optreden in de Koepelhal, Hall of Fame of Club Smederij. Voor ieder wat wils, en dat allemaal praktisch om de hoek.

Licht en ruimte in balans

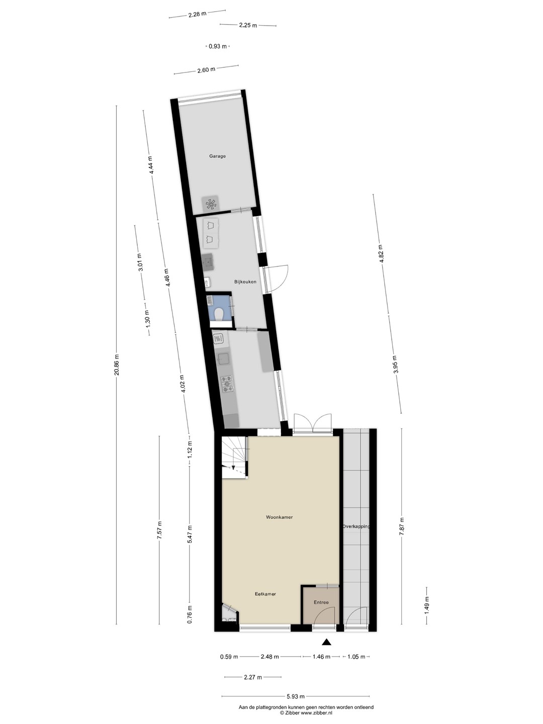
Al bij binnenkomst ervaar je de prettige sfeer. Een kleine hal met garderobe leidt naar de royale woonkamer. Dankzij de glaspanelen deur bij de trapopgang oogt de ruimte open en speels. Het nisje waar normaal de trapkast zou zitten, versterkt dit gevoel van ruimte.

De woonkamer is strak afgewerkt met een tegelvloer, gestuukte wanden en plafonds. Aan de achterzijde zorgen openslaande tuindeuren voor een directe verbinding met de zonnige tuin. Veel daglicht, een doordachte indeling en de hoogwaardige afwerking maken dit een ideale plek om te wonen en te genieten.

Een keuken met karakter

De open keuken in de aanbouw vormt het hart van de woning. Een hoogglans keuken in gebroken wit met donker werkblad en moderne apparatuur (waaronder een quooker, koel-vriescombinatie, gaskookplaat en vaatwasser) biedt alles voor kookliefhebbers.

Aan de andere zijde van de ruimte is extra werk- en bergruimte gecreëerd, compleet met barretje onder het keukenraam. Vanuit de keuken bereik je de ruime bijkeuken met wasmachineaansluiting, wastafel, cv-opstelling en toilet. Hier vind je ook de toegang tot de tuin en de garage.

Stijlvol ontspannen

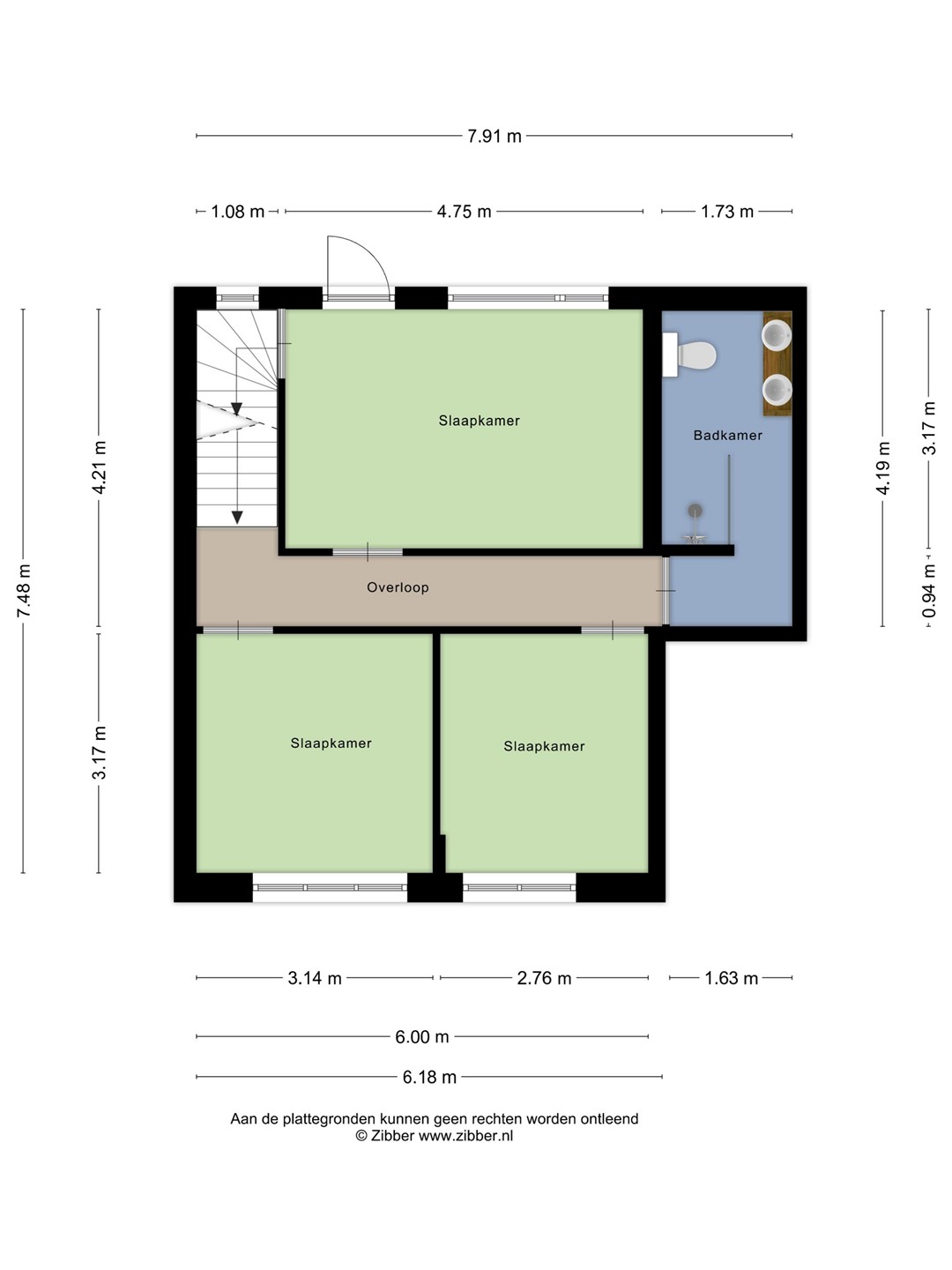
Op de eerste verdieping liggen drie slaapkamers, elk met een laminaatvloer en gestuukte afwerking. Aan de achterzijde bevindt zich de badkamer: vier jaar geleden volledig vernieuwd en ingericht als een stijlvolle wellnessruimte.

Hier vind je een royale inloopdouche, een wandmeubel met dubbele wastafelkommen en een zwevend toilet. Elektrische vloerverwarming zorgt voor warme voeten – elke dag opnieuw een luxe begin van de dag.

Verrassend veelzijdig

Via een vaste trap bereik je de tweede verdieping, die in 2007/2008 is gerealiseerd. Hier ontvouwt zich een indrukwekkende, lichte ruimte met grote ramen aan de voor- en achterzijde, plus een schuifpui naar een balkon/loggia op het zuiden. Perfect als vierde slaapkamer, werkruimte of atelier.

Buitenleven op het zuiden

De achtertuin is onderhoudsvriendelijk aangelegd met sierbestrating, een pad naar de achterpoort en een groen gazon. Dankzij de ligging op het zuiden geniet je hier volop van de zon. De tuin grenst aan de garage, die is voorzien van een elektrische segmentdeur en uitkomt op het parkeerterrein achter de woning.

Duurzaam en energiezuinig

Een extra pluspunt: op het dak zijn in 2022 10 zonnepanelen geplaatst. Daarmee profiteer je van lagere energielasten én draag je bij aan een duurzamere toekomst. Een investering waar je meteen plezier van hebt.

Kenmerken:

- Bouwjaar 1905;
- Perceeloppervlak 166 m2;
- Woonoppervlak 151 m2;
- Inhoud 576 m3;
- NEN 2580 meetrapport*;
- Moderne afwerking;
- 4 slaapkamers;
- Beschikt over een garage;
- Diepe achtertuin;
- Winkels, scholen en de diverse uitvalswegen op korte afstand gelegen.

Kortom: een verrassend ruime, smaakvol afgewerkte woning met alles wat je zoekt – én meer. Hier woon je rustig en comfortabel, terwijl het stadsleven om de hoek ligt.

Bel of mail ons dan voor een afspraak:

Tel: 013 - 30 33 195
Mail: info@viapaulmakelaardij.nl

Via wie?
Via Paul Makelaardij natuurlijk!
Via wie anders?

* De NEN 2580 meetnorm is een eenduidige meetnorm, waarbij met bepaalde richtlijnen rekening gehouden wordt. Zo wordt o.a. een zolder zonder vaste trap of met een lichtoppervlakte (bv dakraam) kleiner dan 0,5 m² niet tot de woonoppervlakte gerekend. Hierdoor kan de woonoppervlakte soms kleiner lijken dan de daadwerkelijke vloeroppervlakte en kleiner lijken dan bij vergelijkbare woningen waar de makelaar de meetnorm niet toe heeft gepast. Ondanks het feit dat de meetnorm verplicht is, hanteren niet alle makelaars consequent de norm. Via Paul Makelaardij laat haar woningen inmeten door een erkend bedrijf. Het meetrapport van deze woning is dan ook, indien gewenst, ter inzage.

Ten aanzien van deze verkoopbrochure zijn de gegevens in deze brochure met de grootste zorg samengesteld. Voor de juistheid van de verstrekte informatie zijn wij in grote mate afhankelijk van derden. Aan vermelde tekst, maten en bijgevoegde tekeningen kunnen derhalve geen rechten worden ontleend. Via Paul makelaardij en de verkoper aanvaarden geen aansprakelijkheid ten aanzien van de gegevens in deze brochure.

Kenmerken

Overdracht
Vraagprijs € 499.500,- k.k.
Status Verkocht
Aanvaarding In overleg
Aangeboden sinds Donderdag 28 augustus 2025
Laatste wijziging Vrijdag 24 oktober 2025
Bouw
Type object Eengezinswoning, woonhuis, tussenwoning
Soort bouw Bestaande bouw
Bouwjaar 1905
Dakbedekking Bitumen
Type dak Platdak
Oppervlaktes en inhoud
Perceeloppervlakte 166 m²
Woonoppervlakte 151 m²
Woonkameroppervlakte 37 m²
Inhoud 576 m³
Oppervlakte overige inpandige ruimten 12 m²
Oppervlakte gebouwgebonden buitenruimte 16 m²
Indeling
Aantal bouwlagen 3
Aantal kamers 6 (waarvan 4 slaapkamers)
Locatie
Ligging Aan rustige weg
In woonwijk
Tuin
Type Achtertuin
Hoofdtuin Ja
Oriëntering Zuiden
Heeft een achterom Ja
Tuin 2 - Type Achtertuin
Energieverbruik
Energielabel C
CV ketel
CV ketel Remeha
Warmtebron Gas
Bouwjaar 2021
Combiketel Ja
Eigendom Eigendom
Uitrusting
Warm water CV-ketel
Verwarmingssysteem Centrale verwarming
Elektrische verwarming
Badkamervoorzieningen Dubbele wastafel
Inloopdouche
Toilet
Wastafelmeubel
Heeft een balkon Ja
Tuin aanwezig Ja
Heeft zonnecollectoren Ja
Heeft ventilatie Ja
Kadastrale gegevens
Kadastrale aanduiding Tilburg N 18148
Perceeloppervlakte 147 m²
Omvang Geheel perceel
Eigendomsituatie Eigen grond
Kadastrale aanduiding Tilburg N 18147
Perceeloppervlakte 19 m²
Omvang Geheel perceel
Eigendomsituatie Eigen grond

Plattegronden

Brochure(s) en overige bijlagen