Via Paul Makelaardij
Verkocht onder voorbehoud

Verkocht onder voorbehoud: Mozartlaan 265, 5011 SG Tilburg

€ 325.000,- k.k.

Beschrijving

MOZARTLAAN 265 - TILBURG

Mozart – Licht, Ruimte en Leefplezier in Harmonie
Rust, gemak en alles binnen handbereik

Welkom in een omgeving waar wonen voelt als ontspannen ademhalen. Het appartementencomplex Mozart ligt op een ideale plek in Tilburg-Noord: rustig, groen en met het vernieuwde winkelcentrum Wagnerplein op loopafstand. Hier vind je alles wat je nodig hebt – van de bakker tot de supermarkt en van de sportschool tot gezellige eetgelegenheden. De bushalte is om de hoek, uitvalswegen zijn dichtbij, en binnen tien minuten fiets je naar het bruisende stadscentrum. Comfortabel, centraal en toch heerlijk rustig wonen — dat is wonen in Mozart.

Een symfonie van licht en ruimte
Een entree met allure

De vernieuwde ontvangsthal van complex Mozart ademt moderniteit en klasse. Hoge glazen puien laten het daglicht rijkelijk binnenstromen en creëren een uitnodigende sfeer. Bewoners ontmoeten elkaar graag aan de grote leestafel in het midden van de hal, of in de aparte gezamenlijke ruimte — een plek waar buren meer worden dan alleen gezichten in de lift.

Z-vormige woonkamer – Speels en royaal

Eenmaal binnen in het appartement ervaart u direct de ruimte. De Z-vormige woonkamer is het kloppend hart van de woning – royaal, licht en verrassend veelzijdig. Richt hier een knusse zithoek in waar u na een drukke dag heerlijk tot rust komt, een gezellige eetkamer voor lange tafelsessies met familie, of zelfs een werk- of speelhoek voor de kinderen. Dankzij de speelse indeling heeft elke hoek zijn eigen karakter.

Balkon – Binnen en buiten vloeien in elkaar over

Vanuit de woonkamer loopt u via de loopdeur naar het balkon, dat dankzij de glazen schuifwand het hele jaar door te gebruiken is. In de zomer opent u de panelen en geniet u van de frisse lucht en het uitzicht, in de winter sluit u ze en creëert u een behaaglijke, lichte serre. Een heerlijke plek voor de eerste kop koffie van de dag of een goed glas wijn bij zonsondergang.

Keuken – Praktisch en verzorgd

De keuken aan de voorzijde van het appartement is modern en functioneel ingericht. De rechte opstelling biedt veel werkruimte en is voorzien van diverse inbouwapparatuur, waaronder een kookplaat, combi-oven en vaatwasser. Hier kookt u met plezier – of het nu om een snelle maaltijd gaat of een uitgebreid diner.

Slaapkamers – Rust en privacy voor iedereen

Drie slaapkamers maken dit appartement geschikt voor diverse levensfasen: van jonge gezinnen tot stellen of senioren die ruimte wensen. De hoofdslaapkamer, met directe toegang tot het balkon, is een oase van rust. De overige kamers lenen zich perfect als logeer-, werk- of hobbyruimte.

Badkamer en sanitair – Fris en functioneel

De badkamer is ingericht met een ruime douche en vaste wastafel. De separate toiletruimte met fonteintje zorgt voor extra comfort en privacy.

Praktische bergruimte

Naast comfort is er ook gedacht aan praktische details. In de interne berging vindt u de opstelling voor de cv-installatie, de wasmachineaansluiting en voldoende plek voor voorraad of schoonmaakspullen. Daarnaast beschikt u over een eigen (fietsen)berging op de begane grond.

Kenmerken:

- Bouwjaar: 1970;
- Woonoppervlak: 99 m²;
- Inhoud: 369 m³
- 3 slaapkamers;
- VvE-bijdrage: € 385,- per maand (inclusief voorschot stookkosten van € 100,-);
- NEN 2580 meetrapport*.

Bijzonderheden:

- Recent verduurzaamd complex – volledig gasloos, met klimaatgevel en zonnepanelen;
- Ruim balkon met glazen schuifwand;
- Grotendeels voorzien van een nette laminaatvloer;
- Schilderwerk binnen uitgevoerd in 2024;
- Centraal gelegen nabij winkelcentrum Wagnerplein, bushalte en uitvalswegen.

Wil je deze bijzondere woning met zijn vele mogelijkheden bezichtigen?
Dat begrijpen wij heel goed!
Bel of mail ons dan voor een afspraak:

Tel: 013 - 30 33 195
Mail: info@viapaulmakelaardij.nl

Via wie?
Via Paul Makelaardij natuurlijk!
Via wie anders?

De NEN 2580 meetnorm is een eenduidige meetnorm, waarbij met bepaalde richtlijnen rekening gehouden wordt. Zo wordt o.a. een zolder zonder vaste trap of met een lichtoppervlakte (bv dakraam) kleiner dan 0,5 m² niet tot de woonoppervlakte gerekend. Hierdoor kan de woonoppervlakte soms kleiner lijken dan de daadwerkelijke vloeroppervlakte en kleiner lijken dan bij vergelijkbare woningen waar de makelaar de meetnorm niet toe heeft gepast. Ondanks het feit dat de meetnorm verplicht is, hanteren niet alle makelaars consequent de norm. Via Paul Makelaardij laat haar woningen inmeten door een erkend bedrijf. Het meetrapport van deze woning is dan ook, indien gewenst, ter inzage.

Ten aanzien van deze verkoopbrochure zijn de gegevens in deze brochure met de grootste zorg samengesteld. Voor de juistheid van de verstrekte informatie zijn wij in grote mate afhankelijk van derden. Aan vermelde tekst, maten en bijgevoegde tekeningen kunnen derhalve geen rechten worden ontleend. Via Paul makelaardij en de verkoper aanvaarden geen aansprakelijkheid ten aanzien van de gegevens in deze brochure.

Kenmerken

Overdracht
Vraagprijs € 325.000,- k.k.
Servicekosten € 285,-
Status Verkocht onder voorbehoud
Aanvaarding In overleg
Aangeboden sinds Donderdag 16 oktober 2025
Laatste wijziging Maandag 1 december 2025
Bouw
Type object Galerijflat, appartement
Woonlaag 1e woonlaag
Soort bouw Bestaande bouw
Bouwjaar 1970
Oppervlaktes en inhoud
Woonoppervlakte 99 m²
Woonkameroppervlakte 27 m²
Inhoud 369 m³
Oppervlakte overige inpandige ruimten 12 m²
Indeling
Aantal bouwlagen 1
Aantal kamers 5 (waarvan 3 slaapkamers)
Energieverbruik
Energielabel C
CV ketel
CV ketel Storke whr 90 br
Warmtebron Gas
Uitrusting
Warm water CV-ketel
Verwarmingssysteem Centrale verwarming
Badkamervoorzieningen Douche
Wastafel
Heeft schuur/berging Ja
Heeft ventilatie Ja
Vereniging van Eigenaren
Ingeschreven bij de KvK Ja
Jaarlijkse vergadering Ja
Periodieke bijdrage Ja
Reservefonds Ja
Onderhoudsverwachting Ja
Opstal verzekering Ja
Kadastrale gegevens
Kadastrale aanduiding Tilburg S 5438
Omvang Appartementsrecht of complex
Eigendomsituatie Eigen grond
Neem contact met mij op

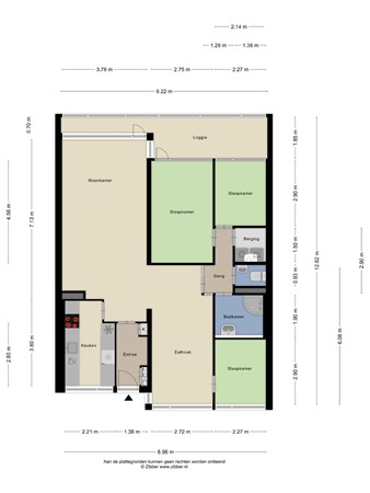
Plattegronden

Brochure(s) en overige bijlagen