Via Paul Makelaardij
Nieuw in verkoop

Te koop: Nieuwlandstraat 57, 5038 SM Tilburg

€ 550.000,- k.k.

Beschrijving

NIEUWLANDSTRAAT 57 TILBURG

Wonen aan de Nieuwlandstraat betekent wonen op een plek waar het beste van de stad samenkomt. Deze charmante straat, verscholen in het levendige hart van Tilburg, ademt karakter en historie, terwijl het stadsleven letterlijk om de hoek ligt. Hier wandel je moeiteloos naar gezellige cafés, boetieks en restaurants, terwijl je tegelijkertijd geniet van een verrassend rustige woonomgeving. Daarnaast is dit een huis van de toekomst, omdat deze volledig gasloos is. Wat wil je nog meer!?

De directe nabijheid van het knusse Radiopleintje geeft deze locatie een bijna dorpse charme, midden in de stad. Het is een plek waar buren elkaar nog groeten en waar je op een zonnige dag even neerstrijkt met een kop koffie terwijl de stad zachtjes om je heen beweegt. Met alle voorzieningen binnen handbereik én een unieke sfeer die je nergens anders vindt, is dit een locatie die je moet beleven om te begrijpen.

Sfeervol wonen met karakter en allure

Een woning met een verhaal
Deze unieke en karaktervolle bovenwoning uit 1920 is er één die je zelden tegenkomt. Volledig verbouwd in 1998, met behoud van prachtige authentieke elementen, ademt deze woning historie én comfort. Verdeeld over maar liefst vier woonlagen, biedt dit huis een speelse indeling die telkens weer verrast.

Leven met uitzicht
De sfeervolle woonkamer op de eerste verdieping vormt het kloppend hart van de woning. Hoge plafonds, strak gestucte wanden en een overvloed aan licht zorgen voor een ruimtelijk gevoel. Vanuit hier kijk je uit over het gezellige Radiopleintje — een levend schilderij dat elk moment van de dag een andere sfeer met zich meebrengt. Aan de voorzijde bevindt zich een charmant stadsbalkon, terwijl je aan de achterzijde een heerlijk dakterras vindt, grenzend aan de keuken.

Koken en genieten
De in 2021 geplaatste keuken is een perfecte balans tussen landelijk en modern. Met hoogwaardige afwerking en praktische indeling is dit een plek waar koken en samenzijn vanzelf samenkomen. De aangrenzende buitenruimte maakt het geheel compleet: binnen en buiten vloeien hier naadloos in elkaar over.

Ruimte en rust
Op de tweede verdieping vind je een royale slaapkamer met een walk-in closet — een plek waar luxe en comfort samenkomen. De verdieping wordt gekenmerkt door hoge plafonds, sfeervolle paneeldeuren met glas-in-lood en prachtige raampartijen. De badkamer is modern uitgevoerd en voorzien van een ligbad, ruime douche en stijlvolle details zoals mozaïek en stucwerk. Daarnaast is er een separaat toilet aanwezig.

Verdieping vol mogelijkheden
De derde verdieping biedt nog eens twee ruime slaapkamers, ideaal voor een gezin, thuiswerkplek of logeerkamers. Centraal bevindt zich een grote berging waar ook de cv-installatie en wasruimte zijn ondergebracht — praktisch en netjes uit het zicht.

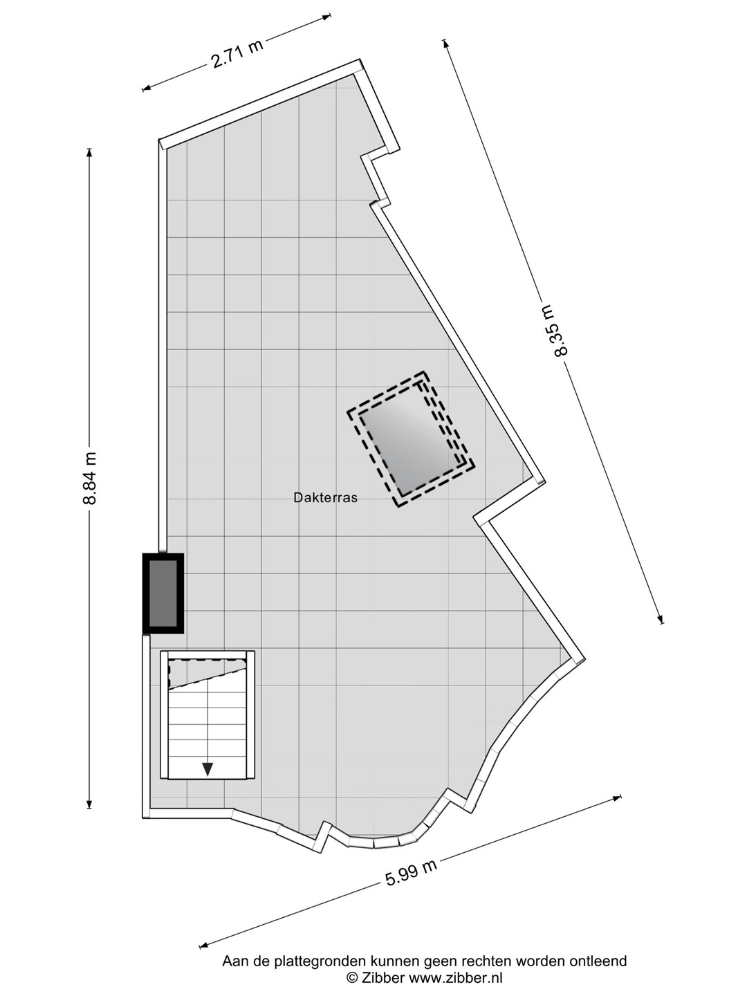
Buitenleven op hoogte
De absolute eyecatcher van deze woning bevindt zich op de vierde verdieping: een indrukwekkend dakterras van circa 37 m². Hier geniet je van zon, privacy en een panoramisch uitzicht over de stad. Of het nu gaat om lange zomeravonden, een rustig moment voor jezelf of een gezellige borrel met vrienden — dit is een plek waar herinneringen worden gemaakt.

Comfort van nu
Naast sfeer en karakter is er ook gedacht aan hedendaags comfort. Zo is de woning voorzien van HR++ beglazing, zijn er twee airco’s aanwezig op de slaapkamers (2022) en zorgen infraroodpanelen in de woonkamer en keuken voor aangename warmte. Het buitenschilderwerk is in 2024 nog professioneel uitgevoerd, wat bijdraagt aan de verzorgde uitstraling van het geheel.

Pluspunten van de woning
• Bouwjaar: 1920, verbouwd in 1988
• Woonoppervlak: 116 m²
• Bovenwoning met 3 ruime slaapkamers
• Volledig gasloos
• 2 x airco’s aanwezig d.d. 2022
• Opstalrecht van toepassing
• CV-ketel 2020
• NEN 2580 meetrapport*

Contact
Wil je deze bijzondere woning met zijn vele mogelijkheden bezichtigen?
Dat begrijpen wij heel goed!

Bel of mail ons dan voor een afspraak:
Tel: 013 - 30 33 195
Mail: info@viapaulmakelaardij.nl

Via wie?
Via Paul Makelaardij natuurlijk!
Via wie anders?

*De NEN 2580 meetnorm is een eenduidige meetnorm, waarbij met bepaalde richtlijnen rekening gehouden wordt. Zo wordt o.a. een zolder zonder vaste trap of met een totale lichtoppervlakte (bv dakraam) kleiner dan 0,5 m² niet tot de woonoppervlakte gerekend. Hierdoor kan de woonoppervlakte soms kleiner lijken dan de daadwerkelijke vloeroppervlakte en kleiner lijken dan bij vergelijkbare woningen waar de makelaar de meetnorm niet toe heeft gepast. Ondanks het feit dat de meetnorm verplicht is, hanteren niet alle makelaars consequent de norm. Via Paul Makelaardij laat haar woningen inmeten door een erkend bedrijf.

Ten aanzien van deze verkoopbrochure zijn de gegevens in deze brochure met de grootste zorg samengesteld. Voor de juistheid van de verstrekte informatie zijn wij in grote mate afhankelijk van derden. Aan vermelde tekst, maten en bijgevoegde tekeningen kunnen derhalve geen rechten worden ontleend. Via Paul makelaardij en de verkoper aanvaarden geen aansprakelijkheid ten aanzien van de gegevens in deze brochure.

Kenmerken

Overdracht
Vraagprijs € 550.000,- k.k.
Status Nieuw in verkoop
Aanvaarding In overleg
Aangeboden sinds Woensdag 1 april 2026
Laatste wijziging Maandag 13 april 2026
Bouw
Type object Dubbelbovenhuis, bovenwoning, appartement
Woonlaag 1e woonlaag
Soort bouw Bestaande bouw
Bouwjaar 1926
Type dak Platdak
Oppervlaktes en inhoud
Perceeloppervlakte 50 m²
Woonoppervlakte 116 m²
Woonkameroppervlakte 25 m²
Inhoud 382 m³
Oppervlakte gebouwgebonden buitenruimte 50 m²
Indeling
Aantal bouwlagen 4
Aantal kamers 5 (waarvan 3 slaapkamers)
Locatie
Ligging In centrum
Tuin
Type Zonneterras
Hoofdtuin Ja
Oriëntering Noorden
Tuin 2 - Type Zonneterras
Energieverbruik
Energielabel C
Uitrusting
Warm water Elektrische boiler
Badkamervoorzieningen Inloopdouche
Ligbad
Wastafel
Heeft airco Ja
Heeft een balkon Ja
Heeft kabel-tv Ja
Tuin aanwezig Ja
Heeft ventilatie Ja
Vereniging van Eigenaren
Opstal verzekering Ja
Kadastrale gegevens
Kadastrale aanduiding Tilburg M 9611
Perceeloppervlakte 50 m²
Omvang Geheel perceel
Eigendomsituatie Eigen grond
Neem contact met mij op

Plattegronden

Brochure(s) en overige bijlagen