Via Paul Makelaardij
Verkocht onder voorbehoud

Verkocht onder voorbehoud: Nieuwstraat 262, 5025 GC Tilburg

€ 375.000,- k.k.

Beschrijving

NIEUWSTRAAT 262 TILBURG

Wonen aan de Nieuwstraat in Tilburg
Wonen aan de Nieuwstraat betekent wonen in het hart van Tilburg, waar het stadse leven en de charmante gemoedelijkheid van de oude binnenstad hand in hand gaan. Deze straat ademt karakter — van de monumentale gevels tot de levendige sfeer van de nabijgelegen Piusplein, Dwaalgebied en de gezellige terrassen van de stad. Hier wandel je in enkele minuten naar boetiekjes, koffiebars en culturele hotspots zoals De Pont Museum en Het TextielMuseum. De omgeving bruist, maar binnen je eigen woning vind je rust, licht en ruimte — precies de balans waar stadsbewoners naar verlangen.

Een mooi vooruitzicht: de Korvelseweg wordt binnenkort volledig vernieuwd! De straat krijgt sfeervolle groenperkjes, nieuwe bomen en een frisse, eigentijdse uitstraling. Dat betekent niet alleen meer groen en een prettiger straatbeeld, maar ook een duidelijke kwaliteitsimpuls voor de buurt. Hier woon je dus in een omgeving die nog mooier en aantrekkelijker wordt — een plek waar de stad letterlijk tot bloei komt.

Sfeervolle woningbeschrijving

Een warm welkom
Achter de representatieve entree met bellentableau, intercom en brievenbussen, stap je binnen in een verzorgd complex met een uitnodigend binnenterrein. Op de eerste verdieping wacht het gezamenlijke dakterras — een heerlijke plek om te genieten van de zon of een goed gesprek met de buren. De woning zelf is gunstig gelegen aan de voorzijde van het complex en heeft daarnaast ook nog een eigen externe berging.

Licht, ruimte en karakter
De entree van de woning leidt naar de hal met toilet en meterkast, waarna je binnenstapt in de ruime woonkamer. Grote raampartijen zorgen hier voor een overvloed aan daglicht en een open, luchtige sfeer. De semi-aparte eetkamer biedt flexibiliteit: een stijlvolle plek voor lange diners, maar ook eenvoudig om te toveren tot werkkamer of logeerkamer. De ingebouwde kasten voegen niet alleen karakter toe, maar ook praktische opbergruimte.

Koken met plezier
De keuken is een fijne mix van functionaliteit en comfort. Hier vind je alles wat het koken prettig maakt: een combi-oven, koel-vriescombinatie, Quooker, 5-pits gasplaat en een efficiënte afzuiging. Een ruimte die uitnodigt om te experimenteren met recepten en samen te genieten van culinaire momenten.

Boven: rust en comfort
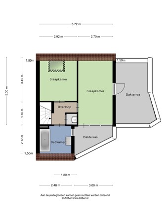
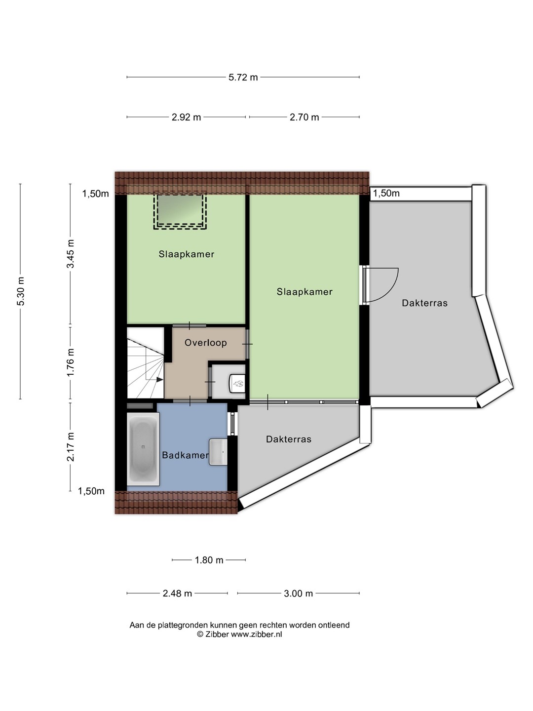
Via de trap bereik je de eerste verdieping, waar twee slaapkamers van goed formaat zijn gesitueerd. De hoofdslaapkamer grenst aan een heerlijk dakterras – jouw eigen buitenplek in de stad, perfect voor een rustige ochtendkoffie of een zwoele zomeravond. Naast dit dakterras zijn nog twee andere buitenruimtes beschikbaar in het appartement. De verdieping is afgewerkt met een nette laminaatvloer. Op de overloop is het washok met aansluiting voor wasmachine en droger, evenals de CV-ketel (2011).

Ontspanning in stijl
De badkamer is een prettige plek om de dag te beginnen of juist af te sluiten: uitgerust met een ligbad en een wastafel, biedt deze ruimte alles voor een ontspannen moment van rust.

Handig en verzorgd
Op de begane grond bevindt zich een gezamenlijke, afgesloten fietsenstalling. De berging – gelegen vlak bij de woning – biedt bovendien volop ruimte voor spullen die je uit het zicht wilt opbergen. Parkeren kan op het terrein aan de zijkant van het complex met een gemeentelijke parkeervergunning (€48,- per jaar).

Pluspunten op een rij:

• Bouwjaar: 1981;
• Woonoppervlak: 93 m²;
• Maisonette met 2 slaapkamers;
• VvE-kosten: €130,- per maand;
• Energielabel C (geldig tot en met 13-07-2031);
• CV-ketel: 2011;
• NEN 2580 meetrapport*.

Wil je deze bijzondere woning met zijn vele mogelijkheden bezichtigen?
Dat begrijpen wij heel goed!

Bel of mail ons dan voor een afspraak:
Tel: 013 - 30 33 195
Mail: info@viapaulmakelaardij.nl

Via wie?
Via Paul Makelaardij natuurlijk!
Via wie anders?

*De NEN 2580 meetnorm is een eenduidige meetnorm, waarbij met bepaalde richtlijnen rekening gehouden wordt. Zo wordt o.a. een zolder zonder vaste trap of met een lichtoppervlakte (bv dakraam) kleiner dan 0,5 m² niet tot de woonoppervlakte gerekend. Hierdoor kan de woonoppervlakte soms kleiner lijken dan de daadwerkelijke vloeroppervlakte en kleiner lijken dan bij vergelijkbare woningen waar de makelaar de meetnorm niet toe heeft gepast. Ondanks het feit dat de meetnorm verplicht is, hanteren niet alle makelaars consequent de norm. Via Paul Makelaardij laat haar woningen inmeten door een erkend bedrijf. Het meetrapport van deze woning is dan ook, indien gewenst, ter inzage.

Ten aanzien van deze verkoopbrochure zijn de gegevens in deze brochure met de grootste zorg samengesteld. Voor de juistheid van de verstrekte informatie zijn wij in grote mate afhankelijk van derden. Aan vermelde tekst, maten en bijgevoegde tekeningen kunnen derhalve geen rechten worden ontleend. Via Paul Makelaardij en de verkoper aanvaarden geen aansprakelijkheid ten aanzien van de gegevens in deze brochure.

Kenmerken

Overdracht
Vraagprijs € 375.000,- k.k.
Servicekosten € 130,-
Status Verkocht onder voorbehoud
Aanvaarding In overleg
Aangeboden sinds Maandag 16 maart 2026
Laatste wijziging Woensdag 15 april 2026
Bouw
Type object Appartement, maisonnette
Woonlaag 1e woonlaag
Soort bouw Bestaande bouw
Bouwjaar 1981
Dakbedekking Dakpannen
Type dak Mansardedak
Oppervlaktes en inhoud
Woonoppervlakte 93 m²
Woonkameroppervlakte 31 m²
Inhoud 320 m³
Oppervlakte gebouwgebonden buitenruimte 18 m²
Indeling
Aantal bouwlagen 2
Aantal kamers 4 (waarvan 2 slaapkamers)
Locatie
Ligging In centrum
In woonwijk
Energieverbruik
Energielabel C
CV ketel
Warmtebron Gas
Bouwjaar 2011
Combiketel Ja
Eigendom Eigendom
Uitrusting
Warm water CV-ketel
Verwarmingssysteem Centrale verwarming
Badkamervoorzieningen Ligbad
Wastafel
Heeft een balkon Ja
Heeft kabel-tv Ja
Heeft schuur/berging Ja
Heeft ventilatie Ja
Vereniging van Eigenaren
Ingeschreven bij de KvK Ja
Jaarlijkse vergadering Ja
Periodieke bijdrage Ja
Reservefonds Ja
Onderhoudsverwachting Ja
Opstal verzekering Ja
Kadastrale gegevens
Kadastrale aanduiding Tilburg Q 5695
Omvang Appartementsrecht of complex
Eigendomsituatie Eigen grond
Indexnummer 2
Neem contact met mij op

Plattegronden

Brochure(s) en overige bijlagen