Via Paul Makelaardij
Verkocht onder voorbehoud

Verkocht onder voorbehoud: Nieuwstraat 86, 5021 WV Tilburg

€ 397.500,- k.k.

Beschrijving

NIEUWSTRAAT 86 TILBURG

Welkom op de Nieuwstraat in Tilburg, een van de meest charmante plekken van de stad. Deze straat ademt de allure van de jaren ’30 en combineert historische charme met hedendaags gemak. Het levendige stadspark Oude Dijk, direct tegenover de woning, nodigt uit voor een ontspannen wandeling onder de monumentale bomen, die momenteel worden gerenoveerd om hun pracht nog verder te versterken.

De wijk Korvel biedt alles wat u nodig heeft binnen handbereik: van gezellige buurtwinkels tot scholen en kinderopvang. Sportliefhebbers en natuurliefhebbers vinden hun geluk in het nabijgelegen recreatiegebied Stappegoor, compleet met grote supermarkt en sportfaciliteiten. Dankzij de centrale ligging bent u bovendien binnen enkele minuten bij het Centraal Station en via de Ringbaan-Zuid uitstekend verbonden met snelwegen richting Breda, Eindhoven en Waalwijk. Kortom, een toplocatie waar sfeer, comfort en bereikbaarheid perfect samenkomen.

Een warme entree vol daglicht
Stap binnen en laat het zonlicht via de vensters in de voordeur uw entree verlichten. Hier voelt u direct de uitnodigende sfeer die deze woning zo uniek maakt. De trap naar de eerste verdieping en de toegang tot de royale woonkamer nodigen uit tot ontdekken en ontspannen.

Gezellige woonkamer met hart van de woning
De woonkamer is royaal en licht, met ruimte voor een grote zithoek en een gezellige eettafel. Het grote raam in de achtergevel brengt de buitenwereld naar binnen, terwijl de moderne zwarte houtkachel zorgt voor een warme, knusse sfeer. De houtlook laminaatvloer (2024) maakt het plaatje compleet en biedt een tijdloze uitstraling.

Keuken met karakter en comfort
Achter de woonkamer vindt u de recent gerenoveerde keuken (2024), een perfecte combinatie van stijl en functionaliteit. Van de bar voor een ontspannen ontbijt tot de hoogwaardige inbouwapparatuur: koken wordt hier een plezier. Dankzij de uitbouw voelt de keuken licht en ruim, met directe toegang tot de zonnige tuin.

Handige bijkeuken en fris toilet
Aan de achterzijde van de keuken vindt u een compact, modern toilet en een praktische bijkeuken. Hier zijn de aansluitingen voor de wasmachine en droger. Extra bergruimte is aanwezig, ideaal voor schoonmaakspullen, voorraad of andere dagelijkse benodigdheden.

Rust en comfort op de eerste verdieping
Op de eerste verdieping bevinden zich twee sfeervolle slaapkamers, netjes afgewerkt met een houtlook laminaatvloer. De volledig vernieuwde badkamer (2024) is een oase van rust, met ligbad, inloopdouche, designradiator en een stijlvol meubel met waskom. Hier kunt u na een drukke dag optimaal ontspannen.

Unieke zolder met karakter
De zolderkamer op de tweede verdieping is een echte sfeermaker. De hoge ruimte met grote dakkapel en zichtbare spantenconstructie biedt een inspirerende plek voor werk, hobby of ontspanning.

Tuin en garage: buitenleven op z’n best
De royale achtertuin op het zuiden is onderhoudsvriendelijk en ideaal om in alle rust van de zon te genieten. De garage biedt zowel praktische parkeermogelijkheden als een handige fietsenstalling. Via de garage, kun je met je fiets gemakkelijk achterom. De tuin is ook via de ingebouwde poort aan de straatzijde naast het huis te bereiken. Via de Van Speijkstraat bereik je de garage met de auto. Achter kun je gratis parkeren en 's nachts wordt de parkeerplaats afgesloten. Wel zo veilig.

- Jaren 30 woning;
- Perceeloppervlak 138 m²;
- Woonoppervlak 116 m²;
- Inhoud 412 m³;
- NEN 2580 meetrapport*;
- Energielabel C, geldig tot en met 05-11-2035;
- Voorzien van 3 zonnepanelen (totaal vermogen 1,5 kWp);
- Geen voor- en achterburen;
- Keuken en badkamer vernieuwd in 2024;
- Je auto parkeer je in je eigen garage;
- Ruime tuin op het zuiden gelegen;
- In rustige woonwijk gelegen;
- Winkels, scholen en de diverse uitvalswegen op korte afstand gelegen.

Wil je deze bijzondere woning met zijn vele mogelijkheden bezichtigen?
Dat begrijpen wij heel goed!
Bel of mail ons dan voor een afspraak:

Tel: 013 - 30 33 195
Mail: info@viapaulmakelaardij.nl

Via wie?
Via Paul Makelaardij natuurlijk!
Via wie anders?

De NEN 2580 meetnorm is een eenduidige meetnorm, waarbij met bepaalde richtlijnen rekening gehouden wordt. Zo wordt o.a. een zolder zonder vaste trap of met een lichtoppervlakte (bv dakraam) kleiner dan 0,5 m² niet tot de woonoppervlakte gerekend. Hierdoor kan de woonoppervlakte soms kleiner lijken dan de daadwerkelijke vloeroppervlakte en kleiner lijken dan bij vergelijkbare woningen waar de makelaar de meetnorm niet toe heeft gepast. Ondanks het feit dat de meetnorm verplicht is, hanteren niet alle makelaars consequent de norm. Via Paul Makelaardij laat haar woningen inmeten door een erkend bedrijf. Het meetrapport van deze woning is dan ook, indien gewenst, ter inzage.

Ten aanzien van deze verkoopbrochure zijn de gegevens in deze brochure met de grootste zorg samengesteld. Voor de juistheid van de verstrekte informatie zijn wij in grote mate afhankelijk van derden. Aan vermelde tekst, maten en bijgevoegde tekeningen kunnen derhalve geen rechten worden ontleend. Via Paul makelaardij en de verkoper aanvaarden geen aansprakelijkheid ten aanzien van de gegevens in deze brochure.

Kenmerken

Overdracht
Vraagprijs € 397.500,- k.k.
Status Verkocht onder voorbehoud
Aanvaarding In overleg
Aangeboden sinds Maandag 17 november 2025
Laatste wijziging Dinsdag 9 december 2025
Bouw
Type object Eengezinswoning, woonhuis, tussenwoning
Soort bouw Bestaande bouw
Bouwjaar 1934
Dakbedekking Dakpannen
Type dak Zadeldak
Oppervlaktes en inhoud
Perceeloppervlakte 138 m²
Woonoppervlakte 116 m²
Woonkameroppervlakte 25 m²
Inhoud 412 m³
Oppervlakte externe bergruimte 30 m²
Oppervlakte gebouwgebonden buitenruimte 1 m²
Indeling
Aantal bouwlagen 3
Aantal kamers 5 (waarvan 3 slaapkamers)
Locatie
Ligging Aan rustige weg
In woonwijk
Tuin
Type Achtertuin
Hoofdtuin Ja
Oriëntering Zuiden
Heeft een achterom Ja
Tuin 2 - Type Achtertuin
Energieverbruik
Energielabel C
CV ketel
CV ketel AWB
Warmtebron Gas
Bouwjaar 2017
Combiketel Ja
Eigendom Eigendom
Uitrusting
Warm water CV-ketel
Verwarmingssysteem Centrale verwarming
Houtkachel
Badkamervoorzieningen Inloopdouche
Ligbad
Toilet
Wastafel
Wastafelmeubel
Tuin aanwezig Ja
Heeft rolluiken Ja
Heeft zonnecollectoren Ja
Heeft ventilatie Ja
Kadastrale gegevens
Kadastrale aanduiding Tilburg R 3196
Perceeloppervlakte 138 m²
Omvang Geheel perceel
Eigendomsituatie Eigen grond
Neem contact met mij op

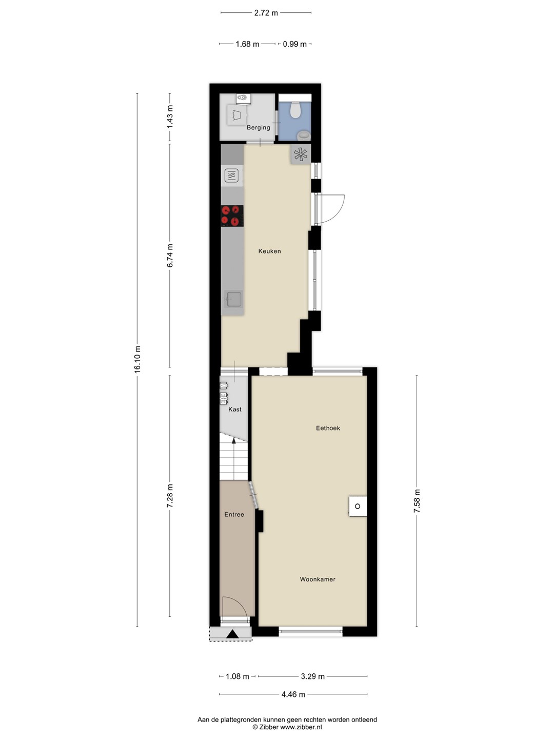
Plattegronden

Brochure(s) en overige bijlagen