Via Paul Makelaardij
Verkocht onder voorbehoud

Verkocht onder voorbehoud: Piusplein 42-07, 5038 WN Tilburg

€ 425.000,- k.k.

Beschrijving

PIUSPLEIN 42 07 TILBURG

Centrumgevoel op zijn best incl. 2 parkeerplaatsen.
Wonen in het hart van Tilburg betekent altijd omringd zijn door levendigheid, gemak en gezelligheid. Dit appartement bevindt zich op een absolute A-locatie in het bruisende centrum van de stad. De terrassen, restaurants en boetieks liggen letterlijk om de hoek. Voor een avond uit hoef je slechts een paar stappen te zetten en het station en de sfeervolle Piushaven bereik je binnen enkele minuten lopen. Alles wat je nodig hebt, ligt binnen handbereik – en tóch woon je hier comfortabel en rustig boven het stedelijke ritme.
Een appartement vol karakter en comfort

Welkom
Bij binnenkomst via de afgesloten entree word je meteen royaal verwelkomd. De nette en verzorgde centrale hal geeft een gevoel van veiligheid én stijl. De hal geeft toegang tot het trappengat en de lift.

Licht en ruimte
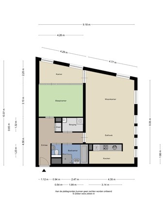
Als hoekappartement op de 3e verdieping geniet je hier van een overvloed aan natuurlijk daglicht. Grote raampartijen zorgen voor een lichte en luchtige sfeer, waardoor de woonkamer een uitnodigende plek wordt om tot rust te komen of gasten te ontvangen.

Stijlvol wonen
Met een woonoppervlak van 82 m² biedt dit appartement de perfecte balans tussen compact en ruim. De indeling is doordacht en praktisch: met een aparte keuken die van alle gemakken is voorzien. Er is er een 4-pits glasplaat, combi oven en koelkast aanwezig. In alle rust koken, zonder kookgeuren die de woonkamer domineren.

Een eigen plek om op te laden
De slaapkamer voelt als een persoonlijke oase. Rustig en comfortabel, ideaal om je na een drukke dag terug te trekken. De ruime badkamer voegt een vleugje luxe toe met zowel een ligbad als een aparte douche, plus een wastafel die het geheel compleet maakt.

Binnen en buiten in één
Grenzend aan zowel de woonkamer als de slaapkamer vind je het inpandige balkon op het zonnige zuiden. Hier geniet je in alle rust van een kop koffie in de ochtend of een glas wijn in de avondzon, terwijl je beschut en comfortabel buiten zit.

Slimme voorzieningen
Praktisch gemak is hier volop aanwezig. Zo beschikt de woning over een aparte service ruimte met aansluitingen voor wasmachine en cv-ketel. In de parkeerkelder heb je een eigen parkeerplaats en desgewenst is er zelfs de mogelijkheid een tweede plek bij te kopen – een zeldzame luxe in het centrum van de stad.

Parkeren en opbergen
In de afgesloten parkeerkelder heb je twee eigen parkeerplaatsen én een separate berging – ideaal voor fietsen, koffers of seizoensspullen. Een uitzonderlijke luxe midden in het centrum van Tilburg.

Kenmerken van de woning
• Eigen parkeerplaats in de parkeerkelder
• Berging in de kelder van het complex
• Veilig wonen op de 3e verdieping, midden in het centrum
• Goed geïsoleerd, dus energiezuinig en comfortabel
• Bouwjaar: 2004
• Woonoppervlak: 82 m²
• Energielabel A
• VvE kosten: €185,54
• NEN 2580 meetrapport*

Wil je deze bijzondere woning met zijn vele mogelijkheden bezichtigen?
Dat begrijpen wij heel goed!

Bel of mail ons dan voor een afspraak:
Tel: 013 - 30 33 195
Mail: tilburg@viapaulmakelaardij.nl

Via wie?
Via Paul Makelaardij natuurlijk!
Via wie anders?

De NEN 2580 meetnorm is een eenduidige meetnorm, waarbij met bepaalde richtlijnen rekening gehouden wordt. Zo wordt o.a. een zolder zonder vaste trap of met een lichtoppervlakte (bv dakraam) kleiner dan 0,5 m² niet tot de woonoppervlakte gerekend. Hierdoor kan de woonoppervlakte soms kleiner lijken dan de daadwerkelijke vloeroppervlakte en kleiner lijken dan bij vergelijkbare woningen waar de makelaar de meetnorm niet toe heeft gepast. Ondanks het feit dat de meetnorm verplicht is, hanteren niet alle makelaars consequent de norm. Via Paul Makelaardij laat haar woningen inmeten door een erkend bedrijf. Het meetrapport van deze woning is dan ook, indien gewenst, ter inzage.

Ten aanzien van deze verkoopbrochure zijn de gegevens in deze brochure met de grootste zorg samengesteld. Voor de juistheid van de verstrekte informatie zijn wij in grote mate afhankelijk van derden. Aan vermelde tekst, maten en bijgevoegde tekeningen kunnen derhalve geen rechten worden ontleend. Via Paul makelaardij en de verkoper aanvaarden geen aansprakelijkheid ten aanzien van de gegevens in deze brochure.

Kenmerken

Overdracht
Vraagprijs € 425.000,- k.k.
Servicekosten € 185,54
Status Verkocht onder voorbehoud
Aanvaarding In overleg
Aangeboden sinds Donderdag 23 oktober 2025
Laatste wijziging Donderdag 21 mei 2026
Bouw
Type object Appartement, portiekflat
Woonlaag 3e woonlaag
Soort bouw Bestaande bouw
Bouwjaar 2004
Type dak Platdak
Oppervlaktes en inhoud
Woonoppervlakte 82 m²
Woonkameroppervlakte 30 m²
Inhoud 271 m³
Oppervlakte externe bergruimte 18 m²
Indeling
Aantal bouwlagen 1
Aantal kamers 3 (waarvan 1 slaapkamer)
Locatie
Ligging In centrum
Energieverbruik
Energielabel A
CV ketel
Warmtebron Gas
Combiketel Ja
Eigendom Eigendom
Uitrusting
Aantal parkeerplaatsen 2
Warm water CV-ketel
Verwarmingssysteem Centrale verwarming
Badkamervoorzieningen Douche
Ligbad
Wastafel
Heeft kabel-tv Ja
Heeft ventilatie Ja
Vereniging van Eigenaren
Ingeschreven bij de KvK Ja
Jaarlijkse vergadering Ja
Periodieke bijdrage Ja
Reservefonds Ja
Onderhoudsverwachting Ja
Opstal verzekering Ja
Kadastrale gegevens
Kadastrale aanduiding Tilburg M 11515
Omvang Appartementsrecht of complex
Eigendomsituatie Eigen grond
Indexnummer 21
Kadastrale aanduiding Tilburg M 11515
Omvang Appartementsrecht of complex
Eigendomsituatie Eigen grond
Indexnummer 46
Neem contact met mij op

Plattegronden

Brochure(s) en overige bijlagen