Via Paul Makelaardij
Verkocht onder voorbehoud

Verkocht onder voorbehoud: Postelse Hoeflaan 76, 5042 KL Tilburg

€ 429.000,- k.k.

Beschrijving

Wonen aan de Postelse Hoeflaan

De Postelse Hoeflaan in Tilburg combineert het beste van twee werelden: rust en verbinding. Deze groene, kindvriendelijke laan wordt omringd door verzorgde woningen en biedt een vriendelijke, buurtgerichte sfeer waar buren elkaar nog kennen. Tegelijkertijd ligt het bruisende hart van Tilburg op korte afstand, met winkels, cafés, restaurants en culturele hotspots binnen handbereik. Voor gezinnen zijn er scholen, sportfaciliteiten en speelplaatsen vlakbij, terwijl wandelaars en fietsers genieten van de nabijheid van parken en groene zones. Wonen hier betekent elke dag genieten van een fijne balans tussen dynamiek en geborgenheid.

Sfeervol, comfortabel en toekomstbestendig

Een moderne leefomgeving
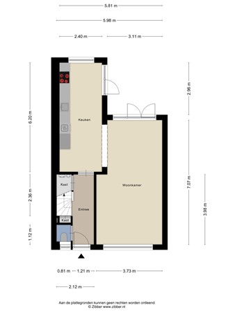
Deze tussenwoning van 118 m² is in 2023/2024 volledig opgeknapt en straalt een frisse, moderne energie uit. Met vier slaapkamers biedt het huis volop ruimte voor een gezin, thuiswerkplek of hobbykamer. De begane grond is voorzien van een open keuken en een lichte woonkamer met PVC vloer, waar de openslaande deuren naar de achtertuin een prachtige binnen-buitenbeleving creëren.

Duurzaam en comfortabel
Met 12 zonnepanelen, een hybride warmtepomp en vloerverwarming op de begane grond ervaar je ultiem wooncomfort. De woning is volledig voorzien van dubbel glas, dak-, vloer- en gevelisolatie, en beschikt over twee airco’s, één in de woonkamer en één in de hoofdslaapkamer. Alles is ingericht met het oog op comfort en energie-efficiëntie, passend bij het energielabel A.

Een keuken om in te leven
De keuken is een ware eyecatcher: een 5-pits inductieplaat, stoomoven/combi, combimagnetron, afzuigkap, vaatwasser, koel-/vriescombinatie en warmte-lader zorgen voor alles wat je nodig hebt om te koken, bakken of te entertainen. Hier is het plezier van koken en samen zijn gegarandeerd.

Luxe badkamer
De ruime badkamer op de eerste verdieping is stijlvol en praktisch ingericht met een douche, toilet en wastafelmeubel. Licht en rust creëren hier een prettige sfeer voor zowel een snelle ochtendroutine als een ontspannen avond.

Zolder met multifunctionele mogelijkheden
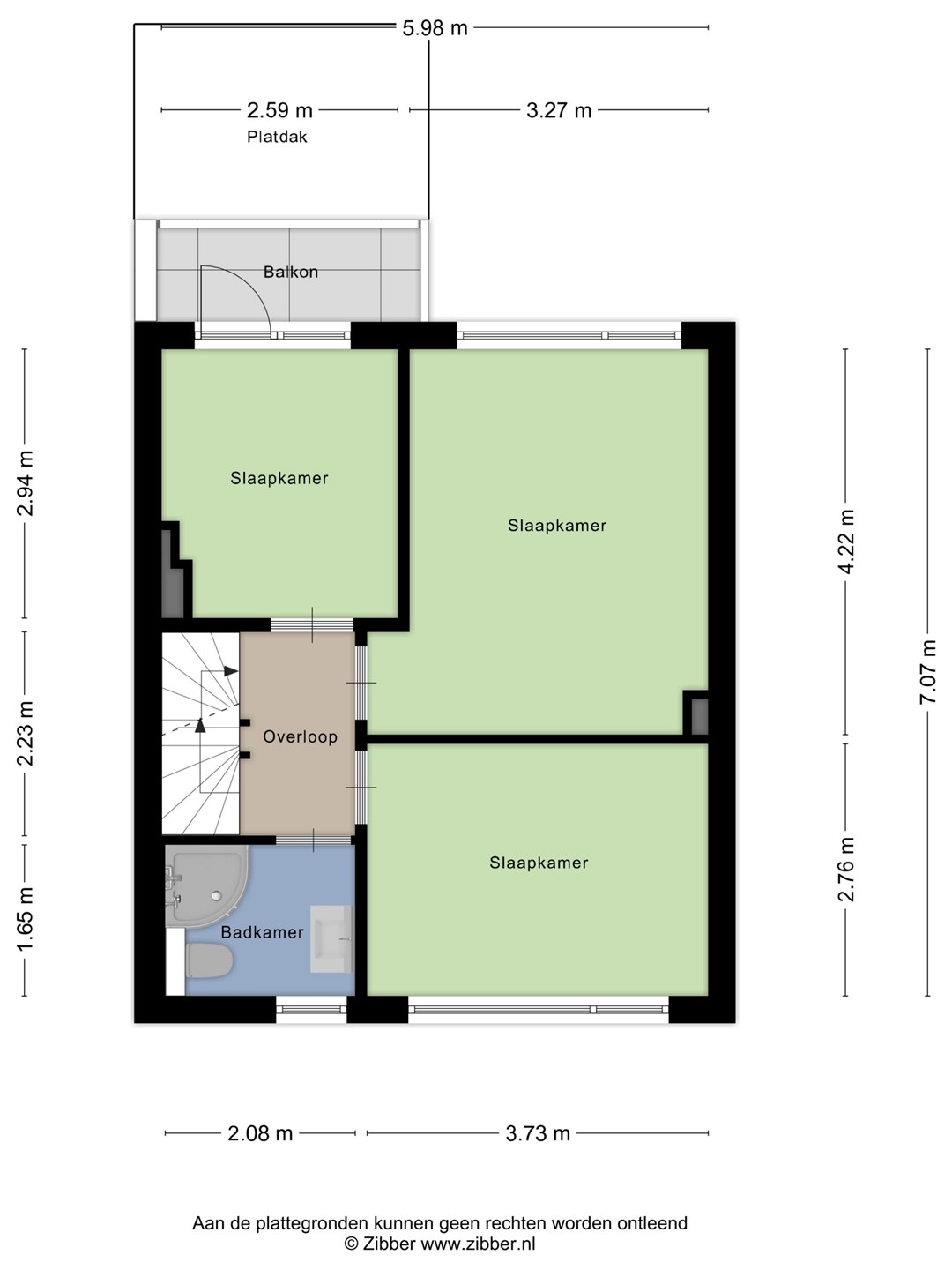
De tweede verdieping biedt een voorzolder met wasruimte, CV-ketel uit 2023, omvormer en veel bergruimte. Een vierde slaapkamer en een dakkapel maken dit tot een fijne plek voor werk, hobby of logés.

Buiten leven in stijl
De tuin, volledig opgeknapt in 2025, is een oase van ontspanning. Kunstgras, een overkapping met elektra, zonnescherm, stenen schuur en water voorziening maken de tuin praktisch en sfeervol. Hier geniet je van lange zomeravonden, BBQ’s en een rustige, groene omgeving.

Comfort en afwerking tot in de details
Overal in de woning zie je dat comfort en kwaliteit centraal staan: moderne afwerking, slimme indeling en lichtinval creëren een huis dat uitnodigt om te leven, te ontspannen en te genieten. Hier voel je je direct thuis.

Pluspunten van deze woning
• Bouwjaar: 1960
• Woonoppervlak: 117 m²
• Tussenwoning met 4 slaapkamers
• CV-ketel 2023
• In 2024 volledig gerenoveerd
• Energielabel A geldig tot en met 21-03-2034
• Fijn wonen nabij het centrum van Tilburg
• NEN 2580 meetrapport*

Bezichtiging en contact
Wil je deze bijzondere woning met zijn vele mogelijkheden bezichtigen?
Dat begrijpen wij heel goed!

Bel of mail ons dan voor een afspraak:
Tel: 013 - 30 33 195
Mail: info@viapaulmakelaardij.nl

Via wie?
Via Paul Makelaardij natuurlijk!
Via wie anders?

*De NEN 2580 meetnorm is een eenduidige meetnorm, waarbij met bepaalde richtlijnen rekening gehouden wordt. Zo wordt o.a. een zolder zonder vaste trap of met een lichtoppervlakte (bv dakraam) kleiner dan 0,5 m² niet tot de woonoppervlakte gerekend. Hierdoor kan de woonoppervlakte soms kleiner lijken dan de daadwerkelijke vloeroppervlakte en kleiner lijken bij vergelijkbare woningen waar de makelaar de meetnorm niet heeft toegepast. Ondanks het feit dat de meetnorm verplicht is, hanteren niet alle makelaars consequent de norm. Via Paul Makelaardij laat haar woningen inmeten door een erkend bedrijf. Het meetrapport van deze woning is dan ook, indien gewenst, ter inzage.

Ten aanzien van deze verkoopbrochure zijn de gegevens in deze brochure met de grootste zorg samengesteld. Voor de juistheid van de verstrekte informatie zijn wij in grote mate afhankelijk van derden. Aan vermelde tekst, maten en bijgevoegde tekeningen kunnen derhalve geen rechten worden ontleend. Via Paul Makelaardij en de verkoper aanvaarden geen aansprakelijkheid ten aanzien van de gegevens in deze brochure.

Kenmerken

Overdracht
Vraagprijs € 429.000,- k.k.
Status Verkocht onder voorbehoud
Aanvaarding In overleg
Aangeboden sinds Woensdag 25 februari 2026
Laatste wijziging Donderdag 2 april 2026
Bouw
Type object Eengezinswoning, woonhuis, tussenwoning
Soort bouw Bestaande bouw
Bouwjaar 1960
Dakbedekking Dakpannen
Type dak Zadeldak
Isolatievormen Dakisolatie
Dubbel glas
Vloerisolatie
Oppervlaktes en inhoud
Perceeloppervlakte 150 m²
Woonoppervlakte 117 m²
Woonkameroppervlakte 22 m²
Inhoud 415 m³
Oppervlakte externe bergruimte 5 m²
Oppervlakte gebouwgebonden buitenruimte 3 m²
Indeling
Aantal bouwlagen 3
Aantal kamers 7 (waarvan 4 slaapkamers)
Locatie
Ligging In woonwijk
Tuin
Type Achtertuin
Hoofdtuin Ja
Oriëntering Oosten
Heeft een achterom Ja
Tuin 2 - Type Achtertuin
Tuin 3 - Type Voortuin
Energieverbruik
Energielabel A
CV ketel
CV ketel Remeha
Warmtebron Gas
Bouwjaar 2020
Combiketel Ja
Eigendom Eigendom
Uitrusting
Warm water CV-ketel
Verwarmingssysteem Centrale verwarming
Vloerverwarming (gedeeltelijk)
Warmtepomp
Badkamervoorzieningen Douche
Toilet
Wastafel
Wastafelmeubel
Heeft een balkon Ja
Heeft kabel-tv Ja
Glasvezelaansluiting aanwezig Ja
Tuin aanwezig Ja
Heeft schuur/berging Ja
Heeft een dakraam Ja
Heeft zonwering Ja
Heeft zonnecollectoren Ja
Heeft ventilatie Ja
Kadastrale gegevens
Kadastrale aanduiding Tilburg AC 1104
Perceeloppervlakte 150 m²
Omvang Geheel perceel
Eigendomsituatie Eigen grond
Neem contact met mij op

Plattegronden

Brochure(s) en overige bijlagen