Via Paul Makelaardij
Verkocht onder voorbehoud

Verkocht onder voorbehoud: Troubadourplein 2, 5021 ED Tilburg

€ 425.000,- k.k.

Beschrijving

TROUBADOURPLEIN 2 TILBURG

Welkom aan het Troubadourplein in Tilburg – een plek waar het beste van twee werelden samenkomt. Hier woon je op loopafstand van het bruisende stadscentrum, terwijl je toch geniet van de rust en het karakter van een fijne woonwijk. Nieuwbouw en charmante bestaande bouw versterken elkaar en zorgen voor een speels straatbeeld met een eigentijdse uitstraling. Voor de dagelijkse boodschappen wandel of fiets je eenvoudig naar de AaBe Fabriek, waar je een compleet aanbod vindt met onder andere een Lidl, Jumbo, slager, bakker en diverse speciaalzaken. Daarnaast ligt ook de Albert Heijn aan de Piusstraat op korte afstand. Alles wat je nodig hebt, bevindt zich binnen handbereik. Op zonnige dagen lonkt de Piushaven – dé plek waar Tilburg tot leven komt. Strijk neer op een terras aan het water, maak een wandeling langs de kade of geniet van de levendige sfeer tijdens mooie zomerdagen. Voor jonge gezinnen is er een basisschool en kinderopvang in de wijk aanwezig. En heb je behoefte aan rust en natuur? Het prachtige Leijpark ligt vlakbij en biedt alle ruimte om te wandelen, te ontspannen en even helemaal op adem te komen. Hier woon je centraal, comfortabel en compleet.

Thuiskomen in warmte en karakter
Een entree met charme
Via de karakteristieke voordeur stap je binnen in een hal die direct de sfeer zet. De speelse tegeltjes op de vloer geven het geheel een eigenzinnig karakter en vormen een warm welkom. Hier voel je meteen: dit is geen standaard huis, dit is een thuis met persoonlijkheid.

Leefruimte om samen te genieten
Dankzij de royale aanbouw aan de achterzijde is een verrassend ruime living met open keuken ontstaan. Hier vloeien koken, tafelen en ontspannen moeiteloos in elkaar over. Er is alle ruimte voor een grote eettafel waar vrienden tot in de late uurtjes blijven hangen én voor een royale zithoek waar comfort centraal staat. Extra comfortabel is de aanwezige vloerverwarming in de woon-/eetkamer en keuken, die zorgt voor een aangename en gelijkmatige warmte. De ijzeren houtkachel vormt het kloppend hart van de woonkamer. Op koude winteravonden plof je neer op de bank, hoor je het zachte knisperen van het vuur en kijk je samen naar een romantische film. In de zomer slaan de tuindeuren open en wordt de tuin een natuurlijk verlengstuk van je leefruimte. Binnen en buiten lopen hier harmonieus in elkaar over.

Culinair genieten in stijl
De recent gerenoveerde, moderne lichte keuken (2026) is een droom voor kookliefhebbers. Volledig uitgebouwd aan de achterzijde en voorzien van alle hedendaagse gemakken. De absolute blikvanger? Het grote 5-pits RVS gasfornuis met extra brede oven. Hier bereid je met gemak uitgebreide diners of een snelle doordeweekse maaltijd met allure. De warme houten PVC-vloer, met vloerverwarming, verbindt de keuken subtiel met de living en zorgt voor een rustige, stijlvolle basis.

Praktisch en comfortabel
Via de bijkeuken bereik je het toilet en de achterdeur. Tevens vind je hier de aansluitingen voor wasmachine en droger – praktisch uit het zicht, maar altijd binnen handbereik.

Verdiepingen vol rust en ruimte
Eerste verdieping – Slapen en ontspannen
Via de vaste trap bereik je de eerste verdieping met twee nette slaapkamers en een stijlvolle badkamer. De houtlook laminaatvloer loopt harmonieus door over de gehele verdieping en zorgt voor een rustige uitstraling. De badkamer is een heerlijke wellnessplek in eigen huis. Voorzien van een ruime inloopdouche, wastafel, zwevend toilet én een ligbad. Stel je voor: na een lange dag zak je weg in het warme water, terwijl je door het raam omhoog kijkt naar de sterrenhemel. Pure ontspanning.

Tweede verdieping – Verrassend royaal
De tweede verdieping is dankzij twee dakkapellen uitgegroeid tot een volwaardige woonlaag. Hier bevindt zich een royale derde slaapkamer met veel lichtinval en volop bergruimte. Ideaal als master bedroom, werkruimte of tienerkamer.

Buitenleven in alle privacy
De diepe achtertuin is onderhoudsvriendelijk aangelegd met strakke sierbestrating. Een fijne plek om te loungen, te barbecueën of simpelweg te genieten van een kop koffie in de ochtendzon. Achterin de tuin staat een royale berging – perfect voor fietsen, tuinmeubilair en opslag. Via deze berging bereik je ook de achterom.

Pluspunten van de woning:

- Bouwjaar: 1941;
- Woonoppervlak: 123 m²;
- Perceeloppervlakte: 148 m²;
- Inhoud: 436 m³;
- Tussenwoning met 3 slaapkamers;
- Beneden uitgebouwd;
- Rustig wonen in een kindvriendelijke buurt;
- Energielabel C geldig tot en met 04-02-2036;
- NEN 2580 meetrapport*.

Wil je deze bijzondere woning met zijn vele mogelijkheden bezichtigen?
Dat begrijpen wij heel goed!

Bel of mail ons dan voor een afspraak:
Tel: 013 - 30 33 195
Mail: info@viapaulmakelaardij.nl

Via wie?
Via Paul Makelaardij natuurlijk!
Via wie anders?

* De NEN 2580 meetnorm is een eenduidige meetnorm, waarbij met bepaalde richtlijnen rekening gehouden wordt. Zo wordt o.a. een zolder zonder vaste trap of met een lichtoppervlakte (bv dakraam) kleiner dan 0,5 m² niet tot de woonoppervlakte gerekend. Hierdoor kan de woonoppervlakte soms kleiner lijken dan de daadwerkelijke vloeroppervlakte en kleiner lijken dan bij vergelijkbare woningen waar de makelaar de meetnorm niet toe heeft gepast. Ondanks het feit dat de meetnorm verplicht is, hanteren niet alle makelaars consequent de norm. Via Paul Makelaardij laat haar woningen inmeten door een erkend bedrijf. Het meetrapport van deze woning is dan ook, indien gewenst, ter inzage.

Ten aanzien van deze verkoopbrochure zijn de gegevens in deze brochure met de grootste zorg samengesteld. Voor de juistheid van de verstrekte informatie zijn wij in grote mate afhankelijk van derden. Aan vermelde tekst, maten en bijgevoegde tekeningen kunnen derhalve geen rechten worden ontleend. Via Paul makelaardij en de verkoper aanvaarden geen aansprakelijkheid ten aanzien van de gegevens in deze brochure.

Kenmerken

Overdracht
Vraagprijs € 425.000,- k.k.
Status Verkocht onder voorbehoud
Aanvaarding In overleg
Aangeboden sinds Woensdag 18 februari 2026
Laatste wijziging Dinsdag 10 maart 2026
Bouw
Type object Eengezinswoning, woonhuis, tussenwoning
Soort bouw Bestaande bouw
Bouwjaar 1941
Dakbedekking Dakpannen
Type dak Zadeldak
Isolatievormen Dakisolatie
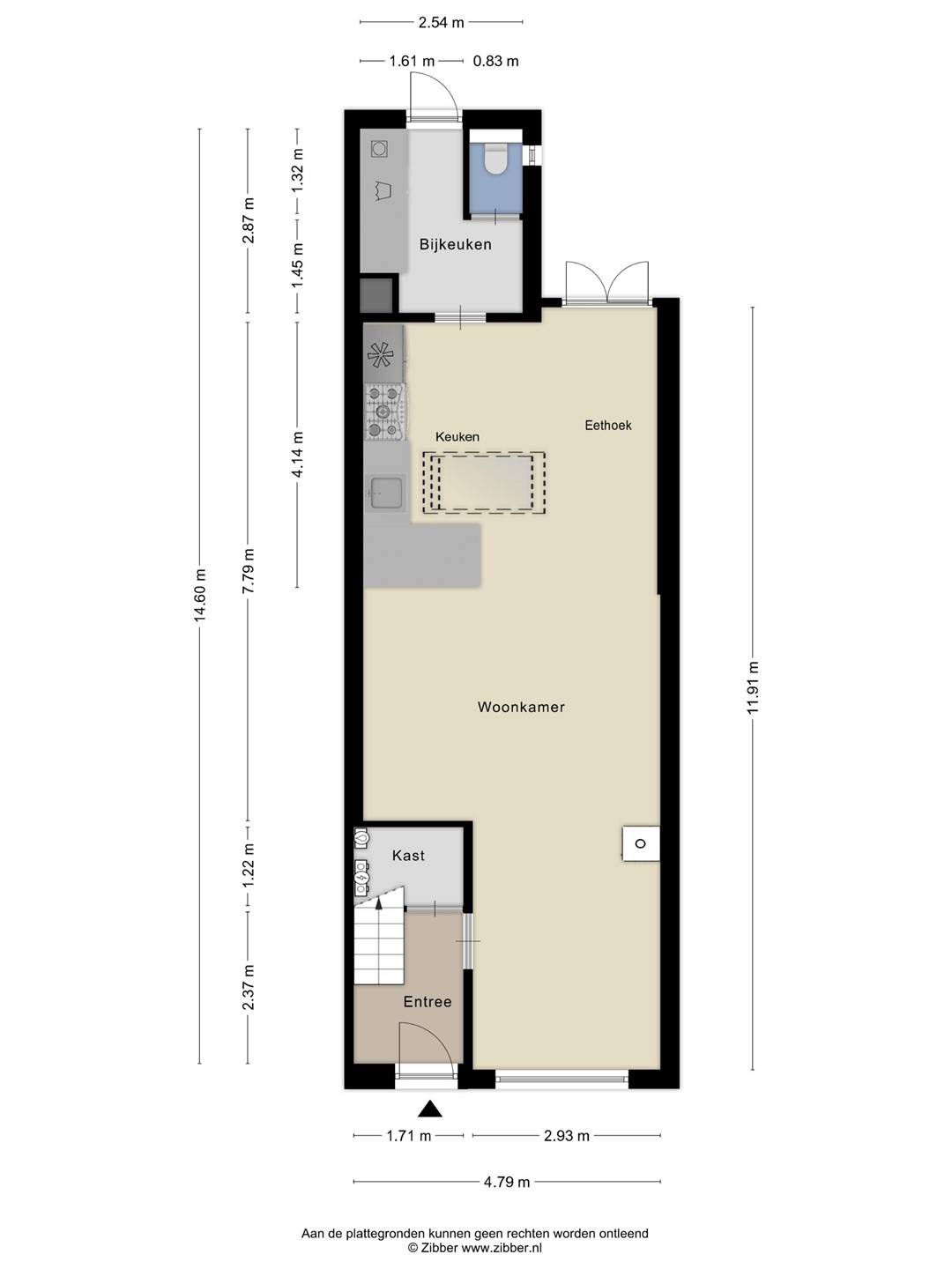
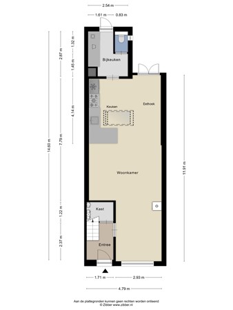
Oppervlaktes en inhoud
Perceeloppervlakte 148 m²
Woonoppervlakte 123 m²
Woonkameroppervlakte 35 m²
Inhoud 436 m³
Oppervlakte externe bergruimte 18 m²
Indeling
Aantal bouwlagen 3
Aantal kamers 5 (waarvan 3 slaapkamers)
Locatie
Ligging Aan rustige weg
In woonwijk
Vrij uitzicht
Tuin
Type Achtertuin
Hoofdtuin Ja
Oriëntering Noorden
Heeft een achterom Ja
Tuin 2 - Type Achtertuin
Energieverbruik
Energielabel C
CV ketel
CV ketel Remeha Avanta ACE 35C
Warmtebron Gas
Bouwjaar 2025
Combiketel Ja
Eigendom Eigendom
Uitrusting
Warm water CV-ketel
Verwarmingssysteem Centrale verwarming
Houtkachel
Vloerverwarming (gedeeltelijk)
Badkamervoorzieningen Inloopdouche
Ligbad
Toilet
Wastafel
Wastafelmeubel
Heeft kabel-tv Ja
Glasvezelaansluiting aanwezig Ja
Tuin aanwezig Ja
Heeft schuur/berging Ja
Heeft ventilatie Ja
Kadastrale gegevens
Kadastrale aanduiding Tilburg R 3438
Perceeloppervlakte 148 m²
Omvang Geheel perceel
Eigendomsituatie Eigen grond
Neem contact met mij op

Plattegronden

Brochure(s) en overige bijlagen