Via Paul Makelaardij
Nieuw in verkoop

Te koop: Veestraat 99, 5021 PN Tilburg

€ 325.000,- k.k.

Beschrijving

VEESTRAAT 99 TILBURG

Veestraat – wonen in een karaktervolle en levendige omgeving
De Veestraat ligt in een charmant stukje Tilburg, waar het stadsleven en het dorpsgevoel elkaar op een natuurlijke manier ontmoeten. Hier wandel je naar de bakker of de koffiebar op de hoek, terwijl de stad zich binnen handbereik bevindt. De buurt ademt historie, met haar karakteristieke gevels, volwassen bomen en het vriendelijke gevoel van een echte gemeenschap. Tegelijkertijd is de ligging uiterst praktisch — met goede verbindingen naar het centrum, scholen, winkels en het openbaar vervoer. De Veestraat is zo’n plek waar buren elkaar nog groeten, kinderen spelen op straat en je ’s zomers tot laat buiten zit met een goed glas wijn.

Een huis met karakter en comfort

Warm welkom
Al bij aankomst valt de sfeervolle voorgevel direct op — een klassieke uitstraling die perfect past bij het bouwjaar 1915, maar met de gemakken van nu. De entree is uitnodigend en leidt naar de hal met trapopgang. Hier voel je direct de huiselijke sfeer van een woning die met zorg is onderhouden.

Samen zijn
De woonkamer en eetkamer vormen samen één open, lichte ruimte. De houten vloer en het zachte licht dat door de ramen valt, zorgen voor een warme ambiance. Dankzij de openslaande deuren naar de tuin vloeien binnen en buiten moeiteloos in elkaar over. Handig detail: onder de trap bevindt zich een trapkast met meterkast — praktisch en netjes weggewerkt.

Koken met plezier
Grenzend aan de woonkamer vind je de keuken, die alles biedt wat je nodig hebt. Met een vaatwasser, koelkast, combi-oven en vierpits inductiekookplaat kook je hier met gemak je favoriete gerechten. De ruimte voelt gezellig en functioneel — een fijne plek voor zowel het snelle ontbijt als een avond lang tafelen.

Slim en praktisch
De bijkeuken met wasruimte is ideaal voor opslag of als extra werkruimte, en beschikt bovendien over een aparte toiletruimte. Praktisch en comfortabel in één.

Een tuin om in te leven
De fraai aangelegde achtertuin is een heerlijke plek om te ontspannen. Hier geniet je van privacy, rust en zon. Achterin de tuin staat een houten schuur voor fietsen of tuingereedschap — of misschien wel die hobby waar je eindelijk tijd voor gaat maken.

Rustig slapen, fris ontwaken
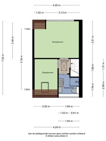
Op de eerste verdieping bevinden zich twee slaapkamers. De hoofdslaapkamer aan de achterzijde is ruim en licht, de tweede kamer is perfect als kinderkamer, werkkamer of inloopkast. De badkamer is voorzien van een toilet, douche en wastafelmeubel — modern, overzichtelijk en fris.

Ruimte in overvloed
Via een vlizotrap bereik je de vliering, die verrassend veel opslagruimte biedt. Perfect voor koffers, seizoensspullen of archiefdozen — alles krijgt hier zijn plek.

Zorgvuldig gerenoveerd
In 2011 is de woning volledig gerenoveerd en voorzien van dubbel glas, dakisolatie en een voorzetwand in de woonkamer. Dat zorgt niet alleen voor een aangenaam binnenklimaat, maar ook voor lagere energiekosten. Het energielabel D, geldig tot 6 november 2035, bevestigt het goede onderhoud en de solide staat van deze woning.

Pluspunten van de woning
• Bouwjaar: 1915
• Woonoppervlak: 69 m²
• Eindwoning met 2 slaapkamers
• In 2011 opgeknapt
• Energielabel D (geldig tot 06-11-2035)
• Goed geïsoleerd (dakisolatie, dubbel glas, voorzetwand)
• NEN 2580 meetrapport*

Wil je deze bijzondere woning met zijn vele mogelijkheden bezichtigen?
Dat begrijpen wij heel goed!

Bel of mail ons dan voor een afspraak:
Tel: 013 - 30 33 195
Mail: info@viapaulmakelaardij.nl

Via wie?
Via Paul Makelaardij natuurlijk!
Via wie anders?

* De NEN 2580 meetnorm is een eenduidige meetnorm, waarbij met bepaalde richtlijnen rekening gehouden wordt. Zo wordt o.a. een zolder zonder vaste trap of met een lichtoppervlakte (bv dakraam) kleiner dan 0,5 m² niet tot de woonoppervlakte gerekend. Hierdoor kan de woonoppervlakte soms kleiner lijken dan de daadwerkelijke vloeroppervlakte en kleiner lijken dan bij vergelijkbare woningen waar de makelaar de meetnorm niet toe heeft gepast. Ondanks het feit dat de meetnorm verplicht is, hanteren niet alle makelaars consequent de norm. Via Paul Makelaardij laat haar woningen inmeten door een erkend bedrijf. Het meetrapport van deze woning is dan ook, indien gewenst, ter inzage.

Ten aanzien van deze verkoopbrochure zijn de gegevens in deze brochure met de grootste zorg samengesteld. Voor de juistheid van de verstrekte informatie zijn wij in grote mate afhankelijk van derden. Aan vermelde tekst, maten en bijgevoegde tekeningen kunnen derhalve geen rechten worden ontleend. Via Paul Makelaardij en de verkoper aanvaarden geen aansprakelijkheid ten aanzien van de gegevens in deze brochure.

Kenmerken

Overdracht
Vraagprijs € 325.000,- k.k.
Status Nieuw in verkoop
Aanvaarding In overleg
Aangeboden sinds Donderdag 5 maart 2026
Bouw
Type object Eengezinswoning, woonhuis, eind woning
Soort bouw Bestaande bouw
Bouwjaar 1915
Dakbedekking Dakpannen
Type dak Platdak
Isolatievormen Dakisolatie
Oppervlaktes en inhoud
Perceeloppervlakte 96 m²
Woonoppervlakte 69 m²
Woonkameroppervlakte 22 m²
Inhoud 267 m³
Oppervlakte overige inpandige ruimten 7 m²
Oppervlakte externe bergruimte 6 m²
Indeling
Aantal bouwlagen 3
Aantal kamers 3 (waarvan 2 slaapkamers)
Locatie
Ligging Aan rustige weg
In woonwijk
Tuin
Type Achtertuin
Hoofdtuin Ja
Oriëntering Noord west
Heeft een achterom Ja
Tuin 2 - Type Achtertuin
Energieverbruik
Energielabel D
CV ketel
CV ketel Nefit HR 107
Warmtebron Gas
Bouwjaar 2011
Combiketel Ja
Eigendom Eigendom
Uitrusting
Warm water CV-ketel
Verwarmingssysteem Centrale verwarming
Badkamervoorzieningen Douche
Toilet
Wastafel
Wastafelmeubel
Heeft kabel-tv Ja
Tuin aanwezig Ja
Heeft schuur/berging Ja
Heeft een dakraam Ja
Heeft ventilatie Ja
Kadastrale gegevens
Kadastrale aanduiding Tilburg R 6606
Perceeloppervlakte 96 m²
Omvang Geheel perceel
Eigendomsituatie Eigen grond
Neem contact met mij op

Plattegronden

Brochure(s) en overige bijlagen